忍者ブログ
調布の賃貸マンション速報ブログ 未公開の特選物件をいち早く配信します!
[68] [69] [70] [71] [72] [73] [74] [75] [76] [77] [78]
×

[PR]上記の広告は3ヶ月以上新規記事投稿のないブログに表示されています。新しい記事を書く事で広告が消えます。



みなさんこんばんわ(^○^)

本日もレントハウス調布店のBlogを拝見して頂き誠にありがとうございます(^○^)!!!



*お知らせ*

明日6月12日第二火曜日は研修の為お休みを頂いております。
明後日13日水曜日は定休日とさせて頂いております。

ご迷惑をおかけ致しますが、よろしくお願い致します。

*お知らせ*




それでは
本日のオススメのお部屋をご紹介させて頂きます(^○^)☆


【家賃】86000円

【共益費】2000円

【敷金】1ヶ月

【礼金】1ヶ月

【構造】木造

【完成日】平成18年3月

【専有面積】39.66㎡

【最寄駅】京王線 調布駅 徒歩11分

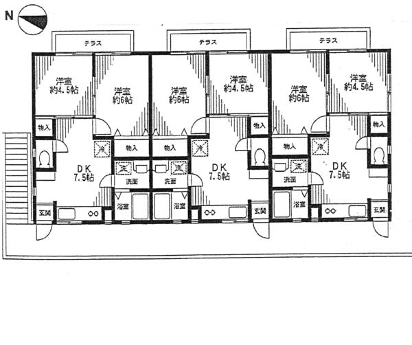
【図面】



*今回ご紹介させて頂くお部屋は真ん中の間取りとなっております*

【外観】
それでは外観からご覧ください(^○^)☆

    

外観は築浅なのでとっても綺麗な外観となっております♪

今回ご紹介させていただくお部屋は1階のお部屋となっておりますが1階が苦手な方でも大丈夫です!!
こちらの物件は写真でご覧のとおり私有地内に建物がございます(●^o^●)

その為、目の前が道路ではないので人通りがありません!
安心して生活を送ることが出来ますよ\(^o^)/


【玄関】
それでは玄関を開けてお部屋をご覧ください(●^o^●)☆

玄関は通常の鍵プラスダイヤルロック式の鍵も設備されております!!
防犯面で高い防犯を期待できますね♪

    

玄関はとっても広々としており
目の前には大きいサイズの靴収納スペースを完備しております(#^.^#)☆

沢山の靴も収納可能となっておりますので
靴を沢山お持ちの方でも余裕で収納が出来そうですよね(*^_^*)☆


【キッチン】
キッチンスペースは大きく
とってもお料理のしやすい空間となっております(^○^)

まな板を置くスペースもしっかり確保されておりますので
楽々お料理が出来そうですね(●^o^●)☆

      

収納スペースも上下に確保されておりますので
沢山の調理器具も収納可能となっております\(^o^)/

窓がありとっても明るいキッチンですよ(^^)/


【バス・トイレ・室内洗濯機置場・独立洗面台】
バス・トイレはもちろん別々となっており
ゆったりとしたスペースなのでしっかりとお風呂にも入ることが出来ますよ(^^)/

お風呂にはうれしい追い炊き機能付きとなっており
いつでも暖かいお風呂に入ることができます☆*・

        

人気の独立洗面台には鏡の左右に収納スペースがございます☆
沢山のハブラシや清潔用品なども収納可能ですよ(●^o^●)☆

室内に洗濯機置場が完備されておりますので
安心ですし、家電も長持ちしてくれます(^-^)☆


【お部屋】
お待たせいたしました!!
それではお部屋をご覧ください!!!

お部屋は2DKとなっており

ダイニングキッチンが7.5帖
洋室が4.5帖と6帖となっております(*^_^*)♪

とっても広々としておりますので
ゆったりと生活を送ることが出来ますよ\(^o^)/

         

収納スペースも各部屋にありとっても充実しております(^_-)-☆
沢山のお荷物をお持ちでも、楽々収納可能ですね(*^^)v

各部屋にはエアコンも完備しておりますので
これからのじめじめとした夏でも、快適に生活を送ることができますね(*^_^*)♪


【バルコニー】
目の前には建物がないので
とっても気持ちのいい太陽の光が差し込んできますよ(#^.^#)☆

スペース的にも十分なスペースがあり
沢山の洗濯物でも干すことが出来ます!!!

  






・・・いかがでしたでしょうか(^○^)!!?

いいお部屋ですよねっ(*^_^*)!!!

その他にもご条件を教えて頂ければ、ご条件に近いお薦め物件を御紹介させて頂きます☆

現在お部屋探しの真っ最中という方は是非一度レントハウス調布店へ!!

お部屋探しのご相談など御気軽にご来店下さいませ☆

☆当店までの道のりです☆

①調布駅中央改札口から南口に出ます。

 

②バスのロータリーを右回りに歩きます。ケンタッキーなどが目印です。

 

③三菱東京UFJ銀行を過ぎます。



④薬のサンドラックを過ぎた、隣にレントハウス調布店が御座います。

 

レントハウス 調布店

TEL  042-490-5533

FAX  042-490-5533

PR


みなさんこんばんわ(*^_^*)

本日もレントハウス調布店のBlogを拝見して頂き誠にありがとうございます(^○^)!!!

関東は昨日から梅雨入り宣言でしたが・・・
本日は見事に晴れましたね!!!

お部屋探し日和になったかと思います☆*・


それでは
本日のオススメの物件をご紹介させて頂きます!!!!

☆★☆★☆★☆★☆★☆★☆★☆★☆★☆★☆★☆★☆★☆★☆★

!!!平成24年、室内フルリニューアル物件!!!


◎和室部屋を洋室に変更し、オールフローリングに!!!

キッチン周りをおしゃれに変更!!!

キッチン・テーブル(椅子付き)を新設!!!

押入れをクローゼットに変更し、見える収納でとってもおしゃれに!!!

モニターインターフォン(録画タイプ)を新設!!!

外壁塗装!!!



☆★☆★☆★☆★☆★☆★☆★☆★☆★☆★☆★☆★☆★☆★☆★




【家賃】76000円

【共益費】2000円

【敷地内駐車場】15000円/月

【敷金】1ヶ月

【礼金】1ヶ月

【構造】木造 地上2階建

【築年月】昭和63年8月

【専有面積】約35㎡

【最寄駅】京王線 調布駅 徒歩8分

【図面】




【外観】
それでは
外観からご覧ください!!

外観は外壁塗装をしたため、とっても綺麗な外観となっております!!
昭和63年築とはまったく感じない外観となっております(●^o^●)★


   

目の前には建物が無いため、しっかりと太陽の光が差し込んできます!!!
敷地内には安心の屋根付き自転車置場も完備しております♪

敷地内駐車場も完備しております♪(駐車場代 15000円/月)


【玄関】
それでは玄関を開けて・・・。
フルリニューアルしたお部屋をご覧ください!!!!!

玄関はとっても広々としたスペースになっており
右側には大きい靴収納スペースを完備しております\(^o^)/

沢山の靴でも収納可能となっております(^○^)♪

     

ななななんと!!!!!
玄関を入って左側にある壁が可動式となっております\(◎o◎)/!!!!!

壁には収納も可能な棚が設置しており、無駄が全くありません(#^.^#)★

「ダイニングキッチンスペースから玄関が見えると・・・ちょっと・・・・。」って方には本当に嬉しい設備ですね☆*・



【キッチン】
それでは
おしゃれなキッチンに変更したキッチンをご覧ください!!!!

設備として
3口ガスコンロのシステムキッチンとなっております(●^o^●)☆
お料理をするスペース的にも十分に確保されており、台や棚がとってもおしゃれです(*^^)♪

大きいサイズの収納スペースが上に確保されており
高さも高い場所に設置しているわけではないので、女性の方でも使用することができますよ☆

         

もちろん冷蔵庫スペースも完備しており
キッチンの裏側にはちょっとした棚がございます(^_-)-☆

収納スペースが沢山あると、とっても嬉しいですよね★*・


【バス・トイレ・室内洗濯機置場】
お問い合わせの多いバストイレはもちろん別々となっており
それぞれのスペースがゆったりと確保されております\(^o^)/

お風呂の鏡が通常より少し大きいタイプに変更されてます★*・



  
 

ゆったり綺麗なお風呂で1日の疲れをしっかりと癒してください\(^o^)/

  

トイレの小窓もおしゃれな板で
細かいところまでしっかりリニューアルされています★*・



室内洗濯機置場はキッチンの右側に完備されております(^_-)-☆
雨風にさらされることが無く、洗濯機が長持ちしますよ\(^o^)/


【お部屋】
お待たせいたしました!!
それではお部屋の方をご覧ください(#^.^#)☆

【ダイニングキッチン 6帖】
   

ダイニングキッチンスペースは6帖ございます☆
解放感のあるダイニングキッチンにはテーブルと椅子が設備されております♪

とってもおしゃれな空間なので
お料理もきっと、もっとおいしく感じるはずです!!!!

安心のモニターインターフォン(録画タイプ)の物が完備されておりますので誰が来たのかすぐにわかります!
この設備があるだけで、とっても安心して生活を送ることが出来ますよ(●^o^●)☆

【洋室 4.5帖】
     

こちらのお部屋にはもちろんエアコンを設備しております(*^_^*)
これからのじめじめ暑い夏の時期でも、快適に生活を送ることが出来ますよ(^^)/

【洋室 6帖】
     

こちらのお部屋はもともと押入れだった物を変更
とってもおしゃれな収納スペースとなっております\(^o^)/!!

上にはダウンライトが設備されており、おしゃれな空間に仕上げております(^○^)☆

スペース的にも押入れから変更しただけで、とっても解放感のあるお部屋に変わりました☆*・

こちらのお部屋にもエアコンが完備されており、計2基のエアコンがあります!!!!


【バルコニー】
バルコニースペースもしっかり確保されております!!

太陽の日差しがしっかりと差し込んできますので
しっかりと洗濯物を乾かすことが出来ますよ(*^_^*)☆

  

こちらのお部屋は1階のお部屋となっておりますが
目の前が人通りのある道路ではなく、敷地内の駐車場となっておりますので
1階でも安心して生活を送ることが出来ますよ\(^o^)/





・・・いかがでしたでしょうか(^○^)!!?

いいお部屋ですよねっ(*^_^*)!!!

その他にもご条件を教えて頂ければ、ご条件に近いお薦め物件を御紹介させて頂きます☆

現在お部屋探しの真っ最中という方は是非一度レントハウス調布店へ!!

お部屋探しのご相談など御気軽にご来店下さいませ☆

☆当店までの道のりです☆

①調布駅中央改札口から南口に出ます。

 

②バスのロータリーを右回りに歩きます。ケンタッキーなどが目印です。

 

③三菱東京UFJ銀行を過ぎます。



④薬のサンドラックを過ぎた、隣にレントハウス調布店が御座います。   

 

レントハウス 調布店

TEL  042-490-5533

FAX  042-490-5533

みなさんこんばんわ(*^_^*)


本日もレントハウス調布店のBlogを拝見して頂き誠にありがとうございます(^○^)!!!

今回の物件はまだお部屋のほうがクリーンング中となっている為 写真の中に清掃道具などが映ってしまっております。 壁紙やお風呂、シンクももちろん全てがピカピカの状態になりますのでご安心ください!

【家賃】105000円

【共益費】込

【敷金】1ヶ月

【礼金】2ヶ月

【構造】軽量鉄骨造 2階建

【完成日】1991年8月

【専有面積】42㎡

【最寄駅】京王線 つつじヶ丘駅 徒歩6分

【図面】



【外観】
それでは外観からご覧ください(^^)/

   

お家の周りには木が植えてあり今日のような日には、気持ちの良い木陰をつくってくれますよ(#^.^#)♪ 外観もとっても綺麗で素敵なお家ですよ(●^o^●)♪
【玄関】
それでは入り口から玄関にかけてご覧ください(#^.^#)★

    

玄関スペースはしっかりと確保されております(#^.^#)♪ 奥の和室の窓から差し込む太陽の光で廊下と玄関とっても明るくなりますよ(●^o^●)!!
【キッチン】
シンクは広々としており大きなまな板も使える為、料理をスムーズに行うことができますよ(^_-)-☆

  

【キッチン周り収納スペース】

   

もちろん収納も上下に付いています\(◎o◎)/ 大きさもかなりの容量があり沢山の食器や調理器具を入れられるので料理が好きな方、家族の方にオススメですよ(^^)/

【DK6帖】
ダイニングは6帖あります(^^)/ 大きなテーブルも置くことが出来るためみんなでお食事もできますよ(#^.^#)

窓もありますので明るい食卓になります(*^_^*)!

  


【バス・トイレ・独立洗面台・室内洗濯機置場】
大人気の独立洗面台が完備されております(^_-)-☆

ハブラシなどを収納することが出来るので、洗面台周りはスッキリとしますよ(^○^)
独立洗面台の横には室内洗濯機置場があります(●^o^●)

洗濯機置場が室内にあることで洗濯機が雨風にさらされない為、長持ちしますよ(*^_^*)!!

【洗面台スペース】

    

【お風呂】

   

お風呂はとっても広々としておりますのでゆったりとお風呂に入ることが出来ますよ(#^.^#)♪

1日の疲れをゆったりと癒すことが出来ます(●^o^●)★

【トイレ】

   

トイレには小窓がありますのでとっても明るいですよ(#^.^#)♪
【お部屋】
お待たせいたしました♪ それではお部屋のほうを見ていきましょう(^_-)-☆

【洋室6帖】

    

とっても広々6帖の洋室となっております(^_-)-☆

大きな窓もありますので沢山の太陽の光がお部屋全体に広がります(#^.^#)♪

もちろん収納スペースもしっかりと完備しております(^○^)

【洋室収納スペース】

 

【和室6帖】

  

こちらのお部屋は和室6帖のお部屋となっております(^○^)♪

窓が2つついておりますので太陽の光がさんさんと室内に降り注ぎます(●^o^●)◎!

もちろんこちらの和室にも収納スペースは確保されておりますよ(#^.^#)!!

【和室収納スペース】

 

洋室、和室ともに大きな収納スペースがありますので沢山のお洋服や、沢山のお荷物も収納が可能となっております(#^.^#) 洋服が多いからや、ご家族の方いかがでしょうか(*^^)!!

【ウォークインクローゼト】

こちらの物件の最大の特徴であると言ってもいいかと思います!!!
大型ウォークインクローゼットです!!

   

収納スペースが本当に沢山ありますので多くのお荷物をお持ちの家族に、本当に喜ばれます(#^.^#)!!!
【バルコニー】

    

1階のお部屋なのでとっても大きなバルコニースペースとなっております(^○^)!!

沢山の洗濯物でも楽々干すことが出来ますよ\(◎o◎)/!!!!!

日当たりも抜群にいいので早く洗濯物が乾きそうですよね(#^.^#)★

スペースがかなり大きいので、お花などを置いても華やかになりとってもかわいくなりそうですよ!!


・・・いかがでしたでしょうか(^○^)!!? いいお部屋ですよねっ(*^_^*)!!!

その他にもご条件を教えて頂ければ、ご条件に近いお薦め物件を御紹介させて頂きます☆

現在お部屋探しの真っ最中という方は是非一度レントハウス調布店へ!! お部屋探しのご相談など御気軽にご来店下さいませ☆

☆当店までの道のりです☆

①調布駅中央改札口から南口に出ます。

 

②バスのロータリーを右回りに歩きます。ケンタッキーなどが目印です。

 

③三菱東京UFJ銀行を過ぎます。



④薬のサンドラックを過ぎた、隣にレントハウス調布店が御座います・・・。

 

レントハウス 調布店

TEL  042-490-5533

FAX  042-490-5533



みなさんこんばんわ(*^_^*)

本日もレントハウス調布店のBlogを拝見して頂き誠にありがとうございます(^○^)!!!

今日も1日快晴で
とっても気持ちのいい1日になりましたね\(^o^)/☆

明日にも東京は梅雨入りな予報だそうです;;
もう夏ですね~☆

梅雨の時期でもご安心してください(^○^)☆
お部屋のご案内は当社の車でのご案内になりますので濡れ知らずです!!


それでは
本日のオススメのお部屋をご紹介させて頂きます(^^)/



【家賃】70000円

【共益費】1000円

【敷金】1ヶ月

【礼金】1ヶ月

【構造】木造

【完成日】1990年3月

【専有面積】28.96㎡

【最寄駅】京王線 柴崎駅 徒歩3分

【図面】




【外観】
それでは
外観からご覧ください(^_-)-☆

  

それにしても
とっても気持ちのいい青空ですよね☆笑

とっても日当たりが良好です!!
目の前に大きなマンションがあるわけではないので沢山太陽の日差しが差し込みますよ\(^o^)/

最寄駅の柴崎駅からは徒歩3分と近く
通勤や通学にとっても便利な立地となっております(*^_^*)☆


【玄関】
玄関はとっても広々とした空間で
靴収納スペースも上下に大きく確保されております\(^o^)/

その為
沢山の靴でも収納可能となっております(^○^)♪

     

これだけの収納スペースがあれば
靴を多くお持ちの女性の方でも楽々収納可能ですね(^○^)☆


【キッチン】
キッチンもぴかぴかに綺麗になっております♪
角部屋なので窓も多く、とっても気持ちのいい日差しが差し込んでくるキッチンになっておりますよ\(^o^)/

    

2口ガスコンロ設置可能となっております(*^_^*)
まな板を置くスペースもゆったりと確保されておりますので
お料理も楽々出来そうです♪

収納スペースももちろん
上下に確保されておりますので
沢山の調理器具や食器なども収納可能となっております(^-^)☆


【バス・トイレ】
お問い合わせの多いバストイレはもちろん別々となっております(#^.^#)
その為
お互いのスペースがゆったりとしており
お風呂にゆったりと入ることが出来ますよ(^○^)☆

     

1日の疲れをしっかり癒してリフレッシュできそうですね(●^o^●)☆

洗濯機置き場も室内にございますので
雨風にさらされることが無く、家電が長持ちしてくれますよ(^^)/


【お部屋】
それでは
お部屋をご覧ください★

間取りは今人気の1DKの間取りとなっております♪

ダイニングキッチンは7帖ととっても広々としており
テーブルや家具などを置いてもゆったりと生活を送ることが出来ますよ\(^o^)/

      

洋室は6帖とこちらも広々としており
なんといっても注目して頂きたいのが
大型収納スペースが2個あるところです!!!!!!

ここまで大きいサイズの収納スペースはなかなかございません!!
沢山のお荷物をお持ちのお客様でも間違いなく楽々収納可能となっております\(◎o◎)/!!!

収納が沢山あって損することはないですしね☆
とっても嬉しい設備の一つです☆*・


【ベランダ】
ベランダはとっても日当たりが良く
気持ちのいい日差しが差し込んできます♪

スペースもしっかりと確保されておりますので
沢山の洗濯物でも余裕を持って干すことが出来そうですよ(^○^)☆

  

こちらのお部屋は1階となっておりますが
目の前に通行人の目が気にならないように
アクリル板のような目隠しを設置しております(^^)!!

もともと人通りが多い道路ではなく
住民の方が通るような道路ですので気にならないですが
こういう気の利いた設備はとっても嬉しいですよね(●^o^●)☆



・・・いかがでしたでしょうか(^○^)!!?

いいお部屋ですよねっ(*^_^*)!!!

その他にもご条件を教えて頂ければ、ご条件に近いお薦め物件を御紹介させて頂きます☆

現在お部屋探しの真っ最中という方は是非一度レントハウス調布店へ!!

お部屋探しのご相談など御気軽にご来店下さいませ☆

☆当店までの道のりです☆

①調布駅中央改札口から南口に出ます。

 

②バスのロータリーを右回りに歩きます。ケンタッキーなどが目印です。

 

③三菱東京UFJ銀行を過ぎます。



④薬のサンドラックを過ぎた、隣にレントハウス調布店が御座います。

 

レントハウス 調布店

TEL  042-490-5533

FAX  042-490-5533


みなさんこんばんわ(*^_^*)


本日もレントハウス調布店のBlogを拝見して頂き誠にありがとうございます(^○^)!!!

今日1日
天気も良くとっても過ごしやすい1日だったと思います♪

それでは
本日のオススメのお部屋をご紹介させて頂きます(#^.^#)★


【家賃】75000円

【共益費】2500円

【敷金】1ヶ月

【礼金】1ヶ月

【構造】軽量鉄骨造

【完成日】平成22年

【専有面積】31.6㎡

【最寄駅】調布北高校前バス停 徒歩3分

【図面】




【外観】
それでは
外観からご覧ください(*^^)v

   

バルコニー側は南向きとなっており
とっても気持ちのいい光も差し込みます(●^o^●)★

築浅なので
とっても綺麗な外観となっております♪


【玄関】
玄関はとっても広々としており
靴収納スペースも沢山あります(●^o^●)★

靴を沢山お持ちの女性の方でもとっても嬉しいですね\(^o^)/

      

日差しが沢山差し込む玄関なので
明かりをつけないでもとっても明るい玄関周りですよ(^_-)-☆

収納スペースも大きいサイズのものがございますので
沢山のお荷物でも収納可能となっております(^○^)


【キッチン】
キッチンはIH2口・電気1口の計3口のキッチンとなっております(#^.^#)★

シンク周りもとっても綺麗で
スペースもしっかり確保されておりますのでお料理がとってもしやすいキッチンとなっております♪

     

収納スペースも上下にしっかりと確保されておりますので
問題なく沢山の調理器具や食器なども収納可能となっております(*^_^*)★


【バス・トイレ】
お問い合わせの多いバストイレはもちろん別々となっており
お互いのスペースがしっかりと確保されておりますので
ゆったりとお風呂に入ることが出来ますよ\(^o^)/

        

大人気の独立洗面台も設置しております(^_-)-☆
横には室内洗濯機置き場も確保しております♪

雨風に当たることがなく家電が長持ちしますよ(^○^)★


【お部屋】
それではお部屋をご覧ください(#^.^#)

お部屋は10帖のフローリングとなっており
日当たりも南向きなのでしっかりと日差しが差し込んできますよ\(^o^)/

   

広々とした空間なので
ゆったりと生活を送ることが出来ます(^O^)!!


【ベランダ】
バルコニーのスペースもしっかりと確保されており
沢山の洗濯物でも干すことが出来ますよ(*^_^*)★

  

日当たりも南向きで抜群ですので
洗濯物もしっかり乾きますね\(^o^)/




・・・いかがでしたでしょうか(^○^)!!?

いいお部屋ですよねっ(*^_^*)!!!

その他にもご条件を教えて頂ければ、ご条件に近いお薦め物件を御紹介させて頂きます★

現在お部屋探しの真っ最中という方は是非一度レントハウス調布店へ!!


お部屋探しのご相談など御気軽にご来店下さいませ☆

☆当店までの道のりです☆

①調布駅中央改札口から南口に出ます。

 

②バスのロータリーを右回りに歩きます。ケンタッキーなどが目印です。

 

③三菱東京UFJ銀行を過ぎます。



④薬のサンドラックを過ぎた、隣にレントハウス調布店が御座います。

 

レントハウス 調布店

TEL  042-490-5533

FAX  042-490-5533



忍者ブログ [PR]
カレンダー
12 2026/01 02
S M T W T F S
1 2 3
4 5 6 7 8 9 10
11 12 13 14 15 16 17
18 19 20 21 22 23 24
25 26 27 28 29 30 31
プロフィール
HN:
レントハウス調布店
性別:
非公開
自己紹介:
京王線沿線調布市内のお部屋探しなら当社にお任せ下さい!
経験豊富なスタッフが『親切・丁寧』をモットーに全力を尽くします!
お客様にとって最高のお部屋が見つかるまで何度でもお付き合いさせて頂きます!
皆様との『初めまして』をスタッフ一同、心よりお待ちしております。

株式会社レントハウス
東京都調布市小島町2-51-9
042-490-5533
HP:http://www.renthouse.co.jp/
mail:chofu@renthouse.co.jp
最新コメント
[02/25 money with surveys]
[12/16 Capasecag]
[12/16 FapbliniaTany]
[12/15 ColoNealutelo]
[05/07 damicaricroke]
カウンター
最新トラックバック
バーコード
ブログ内検索
フリーエリア
お天気情報
アクセス解析